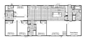
Floor Plan
Benbrook Super Saver 30765B
5 bd | 3 ba | 2280 sqft
- Open living area with large island kitchen
- Kitchen pantry
- Social entertainment bar
- Walk-in closets in master suite
- Glamour master bath with 48″ shower
- 3 bath home with 2 living areas
Facts and Features
Square Feet: 2280
Bedrooms: 5
Bathrooms: 3
Sections: Double-Wide
Dimensional Area: 30' x 76'
Series: SA-Super Saver
Get In Touch
Other Homes You Might Like
Straightforward Home
Financing, Start to Finish
We work with trusted lenders who understand manufactured and modular homes. Whether you're buying your first home or downsizing for the next chapter, we’ll help you find a loan that fits your budget.









