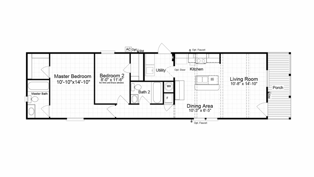
Floor Plan
Heritage 30443E
3 bd | 2 ba | 1312 sqft
- Glamour Master Bath with 48″ Shower
- Oval Deck Tub in Master Bath
- Large Living Room
- Walk-in Closet
- Optional Second Master
- Optional Second Pantry
Facts and Features
Square Feet: 1312
Bedrooms: 3
Bathrooms: 2
Sections: Double-Wide
Dimensional Area: 30' x 44'
Series: SA-Super Saver
Get In Touch
Other Homes You Might Like
Straightforward Home
Financing, Start to Finish
We work with trusted lenders who understand manufactured and modular homes. Whether you're buying your first home or downsizing for the next chapter, we’ll help you find a loan that fits your budget.









