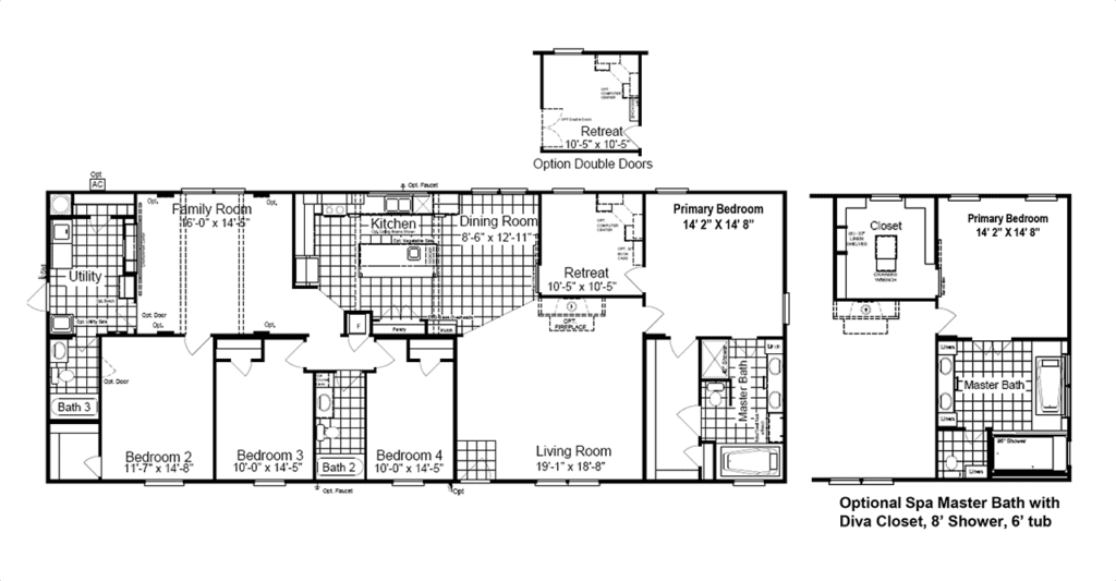
Floor Plan
Pecan Valley 30764P
4 bd | 3 ba | 2280 sqft
- Oversized island
- Kitchen pantry
- 6′ picture window over kitchen sink
- Parent’s retreat
- Spacious walk-through master closet
- 60″ guest bath tub
- Utility room option: wet sink and mud bench
- Also available in 34′ wide
Facts and Features
Square Feet: 2280
Bedrooms: 4
Bathrooms: 3
Sections: Single-Section
Dimensional Area: 30' x 76'
Series: KH-Keystone
Get In Touch
Other Homes You Might Like
Straightforward Home
Financing, Start to Finish
We work with trusted lenders who understand manufactured and modular homes. Whether you're buying your first home or downsizing for the next chapter, we’ll help you find a loan that fits your budget.









